

Kraken Automation assists manufacturers in developing packaging automation line layouts that are designed to meet throughput and performance KPIs.
The process starts by considering the manufacturer’s objectives and initial conceptual drawings, and then developing an approach that is optimized for performance, safety, and on-going maintenance.
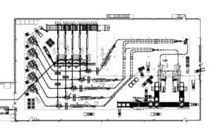
Kraken performs in-depth on-site analysis using tools such as laser measurement and 3D imaging to identify potential interferences such as columns and sprinkler systems. Kraken also considers environmental conditions such as humidity, temperature, and space restrictions that could impact overall packaging line performance.
This detailed and comprehensive approach results in line layouts that maximize productivity, reliability, safety, ergonomics, and ease of cleaning and maintenance.
See all of the types of Packaging Automation Consulting Services we offer.

